Desde el año 1972, tras la muerte de Manuel Gómez-Moreno Martínez, el destino de su legado se vio vinculado al de la Fundación Rodríguez-Acosta, al hacerse ésta responsable de la conservación, exposición y custodia del mismo por un acuerdo con las herederas de nuestro universal granadino, Mª Elena, Natividad y Carmen Gómez-Moreno Rodríguez-Bolivar.
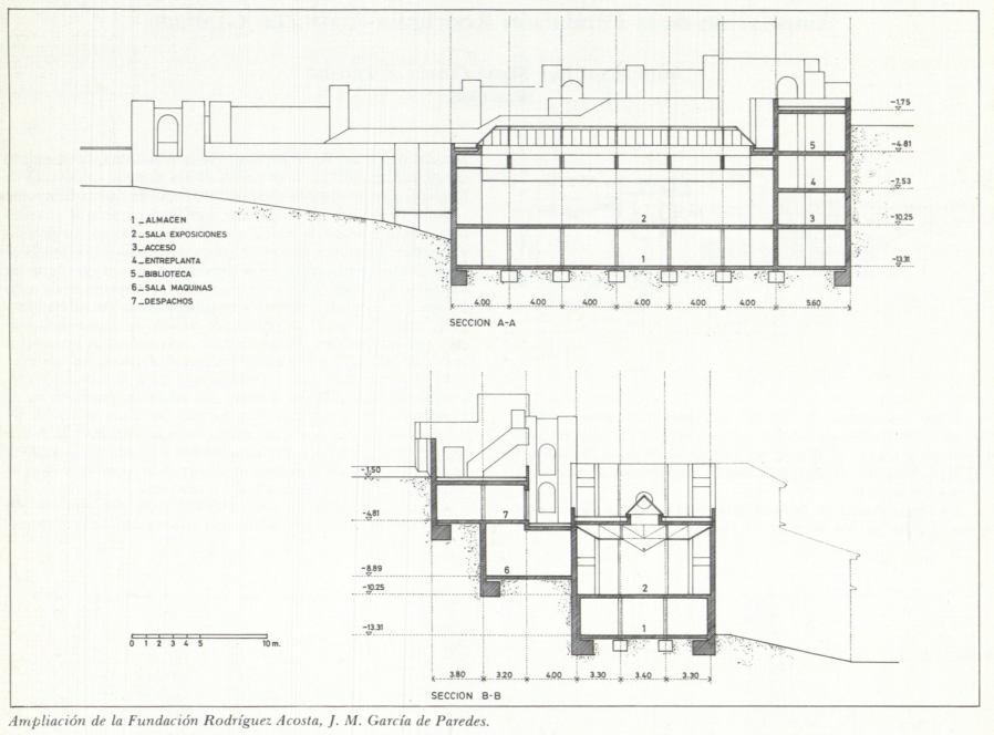
Para acoger este legado se tuvo que adecuar un nuevo espacio; el Patronato de la Fundación acordó comprar un terreno existente al oeste del solar del carmen-estudio para construir en él un nuevo edificio, una ampliación del carmen. Así nació el Instituto Gómez-Moreno con el proyecto del arquitecto José María García de Paredes.
Poco ha cambiado el aspecto de Museo Gómez-Moreno y del resto de sus instalaciones desde aquellos momentos de su inauguración en 1982. Aunque paulatinamente se han ido mejorando las instalaciones y los discursos museográficos buscando una mejora de los mismos, manteniendo el criterio original por el que se instalaron.
Hoy os traemos la última parte del artículo que compartimos la semana pasada, en el que, tratando la obra del arquitecto Teodoro de Anasagasti, se plasma a grandes rasgos la esencia arquitectónica del carmen-estudio. En esta ocasión y como apéndice final del texto, se hace una revisión de lo que en un primer momento se llamó ampliación del carmen de la Fundación, lo que hoy conocemos como Instituto Gómez-Moreno. Está publicado en el nº 240 de la -> Revista Arquitectura (Autor: La Editorial. «Teodoro de Anasagasti y Algán (1880-1938) . Un espacio entre el historicismo y la modernidad» 1983, nº 240, pág. 31-32) y nos llega gracias al portal del Colegio Oficial de Arquitectos de Madrid (COAM)



